Съвременната кухня трябва да бъде не просто красиво помещение, а ефективна и приятна зона за готвене и събирания с близките. Кухня Зева напълно отговаря на тези изисквания - тя е стилна, модерна и отлично организирана.
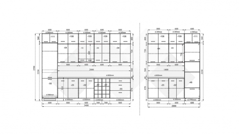
Горния ред шкафове са удобни и функционални - побират малко изполваните уреди и съдове. Основния ред горни шкафове са просторни за най-често използваните уреди и посуда. Витринните шкафове са с опушени матови стъкла 4 мм., за да изглежда още по-елегантно.
Шкаф стандартен размер за вграждане на хладилник - за да бъде всичко в синхрон. Шкаф за вграждане на фурна и микровълнова. Долния ред шкафове е функционално подбран - перфектната комбинация на рафтове и чекмеджета, за да поберат често използваните уреди, подправки и посуда.
Страхотната модерна комбинация между корпус бяло гладко и лице цимент мат с крийм гланц, придава на кухнята характер и уют.
Кухнята е изработена от 16 мм ПДЧ корпус и 18 мм фолиран МДФ. Предимството на фолирания МДФ е, че материалът покрива цялата повърхност, включително и кантовете на детайла, т.е. материалът е облечен изцяло. Термоплотът идва при теб цял, за да можеш да го пригодиш спрямо твоите предпочитания и е в цвят бял мрамор. Всички врати и чекмеджета са с механизъм за плавно затваряне.
📐 Размери:
Долен ред: Д: 340 см. Ш: 60 см. В: 91 см.
Горен ред: Д: 340 см. Ш: 59 см. В: 112 см.
Термоплот: Д: 280 см. Ш: 60 см. В: 3,8 см.
Вора част: Д: 200 см. Ш: 59 см. В: 223 см.
Термоплот: Д: 140 см. Ш: 60 см. В: 3,8 см.
Цвят: цимент мат с крийм гланц и бяло гладко
Пакети:
Пакет 1: 28/9/73 см., 10.4 кг.
Пакет 2: 30/4/72 см., 5.6 кг.
Пакет 3: 28/9/73 см., 10.4 кг.
Пакет 4: 30/4/72 см., 6.6 кг.
Пакет 5: 28/13/77 см., 13.1 кг.
Пакет 6: 40/4/72 см., 6.6 кг.
Пакет 7: 28/13/77 см., 6.6 кг.
Пакет 8: 40/4/72 см., 6.6 кг.
Пакет 9: 28/13/77 см., 13.1 кг.
Пакет 10: 28/4/68 см., 10.1 кг.
Пакет 11: 28/9/68 см., 10.1 кг.
Пакет 12: 30/4/68 см., 6.6 кг.
Пакет 13: 46/9/75 см., 16 кг.
Пакет 14: 30/4/77 см., 6.6 кг.
Пакет 15: 46/9/75 см., 16 кг.
Пакет 16: 30/4/77 см., 6.6 кг.
Пакет 17: 46/12/80 см., 19.5 кг.
Пакет 18: 40/4/77 см., 6.6 кг.
Пакет 19: 46/12/80 см., 19.5 кг.
Пакет 20: 40/4/77 см., 6.6 кг.
Пакет 21: 46/12/75 см., 20.6 кг.
Пакет 22: 46/12/75 см., 20.6 кг.
Пакет 23: 57/3/211 см., 26.2 кг.
Пакет 24: 62/14/73 см., 30.8 кг.
Пакет 25: 60/4/111 см., 16 кг.
Пакет 26: 57/3/212 см., 26 кг.
Пакет 27: 57/8/75 см., 16.5 кг.
Пакет 28: 60/4/136 см., 18.8 кг.
Пакет 29: 63/11/81 см., 22.8 кг.
Пакет 30: 53/9/77 см., 18.8 кг.
Пакет 31: 31/6/80 см., 8.8 кг.
Пакет 32: 28/8/77 см., 8.8 кг.
Пакет 33: 40/4/40 см., 4.5 кг.
Пакет 34: 28/8/77 см., 8.8 кг.
Пакет 35: 40/4/40 см., 4.5 кг.
Пакет 36: 28/8/77 см., 8.8 кг.
Пакет 37: 40/4/40 см., 4.5 кг.
Пакет 38: 29/8/58 см., 7.3 кг.
Пакет 39: 31/4/41 см., 3.2 кг.
Пакет 40: 29/8/58 см., 7.3 кг.
Пакет 41: 31/4/41 см., 3.2 кг.
Пакет 42: 29/8/58 см., 7.3 кг.
Пакет 43: 31/4/41 см., 3.2 кг.
Пакет 44: 58/8/58 см., 13.1 кг.
Пакет 45: 31/4/37 см., 3.1 кг.
Пакет 46: 58/8/58 см., 13.1 кг.
Пакет 47: 31/4/37 см., 3.1 кг.
Пакет 48: 4/140/60 см., 21.7 кг.
Пакет 49: 4/280/60 см., 43.4 кг.
Пакет 50: 15/30/15 см., 2 кг.
Забележка: Възможно е отклонение от действителните цветове на дамаските/декорите с тези на екрана на твоето устройство.
Гаранция: 24 месеца
Доставка: Осигуряваме безплатна доставка със специализиран собствен транспорт за цялата страна
Качване: 118 € / 230,79 лв.
Монтаж: 315 € / 616,09 лв.
Важно: Минимална такса за качване или монтаж 25 € / 48,90 лв. на адрес. Териториално покритие на услугите виж тук: Качване,Монтаж
КухняЗевацимент мат с крийм гланц и бяло гладко прави
Съвременната кухня трябва да бъде не просто красиво помещение, а ефективна и приятна зона за готвене и събирания с близките. Кухня Зева напълно отговаря на тези изисквания - тя е стилна, модерна и отлично организирана.
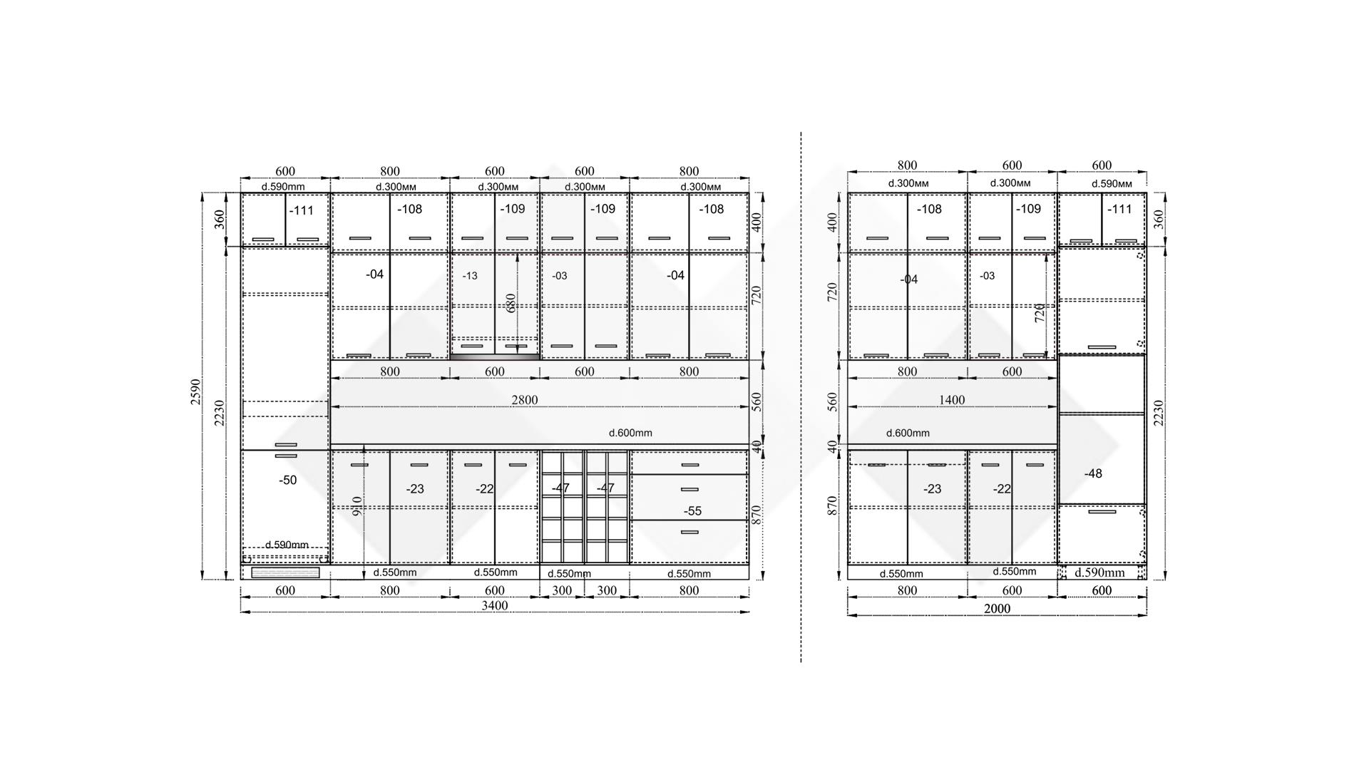
Горния ред шкафове са удобни и функционални - побират малко изполваните уреди и съдове. Основния ред горни шкафове са просторни за най-често използваните уреди и посуда. Витринните шкафове са с опушени матови стъкла 4 мм., за да изглежда още по-елегантно.
Шкаф стандартен размер за вграждане на хладилник - за да бъде всичко в синхрон. Шкаф за вграждане на фурна и микровълнова. Долния ред шкафове е функционално подбран - перфектната комбинация на рафтове и чекмеджета, за да поберат често използваните уреди, подправки и посуда.
Страхотната модерна комбинация между корпус бяло гладко и лице цимент мат с крийм гланц, придава на кухнята характер и уют.
Кухнята е изработена от 16 мм ПДЧ корпус и 18 мм фолиран МДФ. Предимството на фолирания МДФ е, че материалът покрива цялата повърхност, включително и кантовете на детайла, т.е. материалът е облечен изцяло. Термоплотът идва при теб цял, за да можеш да го пригодиш спрямо твоите предпочитания и е в цвят бял мрамор. Всички врати и чекмеджета са с механизъм за плавно затваряне.
📐 Размери:
Долен ред: Д: 340 см. Ш: 60 см. В: 91 см.
Горен ред: Д: 340 см. Ш: 59 см. В: 112 см.
Термоплот: Д: 280 см. Ш: 60 см. В: 3,8 см.
Вора част: Д: 200 см. Ш: 59 см. В: 223 см.
Термоплот: Д: 140 см. Ш: 60 см. В: 3,8 см.
Цвят: цимент мат с крийм гланц и бяло гладко
Пакети:
Пакет 1: 28/9/73 см., 10.4 кг.
Пакет 2: 30/4/72 см., 5.6 кг.
Пакет 3: 28/9/73 см., 10.4 кг.
Пакет 4: 30/4/72 см., 6.6 кг.
Пакет 5: 28/13/77 см., 13.1 кг.
Пакет 6: 40/4/72 см., 6.6 кг.
Пакет 7: 28/13/77 см., 6.6 кг.
Пакет 8: 40/4/72 см., 6.6 кг.
Пакет 9: 28/13/77 см., 13.1 кг.
Пакет 10: 28/4/68 см., 10.1 кг.
Пакет 11: 28/9/68 см., 10.1 кг.
Пакет 12: 30/4/68 см., 6.6 кг.
Пакет 13: 46/9/75 см., 16 кг.
Пакет 14: 30/4/77 см., 6.6 кг.
Пакет 15: 46/9/75 см., 16 кг.
Пакет 16: 30/4/77 см., 6.6 кг.
Пакет 17: 46/12/80 см., 19.5 кг.
Пакет 18: 40/4/77 см., 6.6 кг.
Пакет 19: 46/12/80 см., 19.5 кг.
Пакет 20: 40/4/77 см., 6.6 кг.
Пакет 21: 46/12/75 см., 20.6 кг.
Пакет 22: 46/12/75 см., 20.6 кг.
Пакет 23: 57/3/211 см., 26.2 кг.
Пакет 24: 62/14/73 см., 30.8 кг.
Пакет 25: 60/4/111 см., 16 кг.
Пакет 26: 57/3/212 см., 26 кг.
Пакет 27: 57/8/75 см., 16.5 кг.
Пакет 28: 60/4/136 см., 18.8 кг.
Пакет 29: 63/11/81 см., 22.8 кг.
Пакет 30: 53/9/77 см., 18.8 кг.
Пакет 31: 31/6/80 см., 8.8 кг.
Пакет 32: 28/8/77 см., 8.8 кг.
Пакет 33: 40/4/40 см., 4.5 кг.
Пакет 34: 28/8/77 см., 8.8 кг.
Пакет 35: 40/4/40 см., 4.5 кг.
Пакет 36: 28/8/77 см., 8.8 кг.
Пакет 37: 40/4/40 см., 4.5 кг.
Пакет 38: 29/8/58 см., 7.3 кг.
Пакет 39: 31/4/41 см., 3.2 кг.
Пакет 40: 29/8/58 см., 7.3 кг.
Пакет 41: 31/4/41 см., 3.2 кг.
Пакет 42: 29/8/58 см., 7.3 кг.
Пакет 43: 31/4/41 см., 3.2 кг.
Пакет 44: 58/8/58 см., 13.1 кг.
Пакет 45: 31/4/37 см., 3.1 кг.
Пакет 46: 58/8/58 см., 13.1 кг.
Пакет 47: 31/4/37 см., 3.1 кг.
Пакет 48: 4/140/60 см., 21.7 кг.
Пакет 49: 4/280/60 см., 43.4 кг.
Пакет 50: 15/30/15 см., 2 кг.
Забележка: Възможно е отклонение от действителните цветове на дамаските/декорите с тези на екрана на твоето устройство.
Гаранция: 24 месеца
Доставка: Осигуряваме безплатна доставка със специализиран собствен транспорт за цялата страна
Качване: 118 € / 230,79 лв.
Монтаж: 315 € / 616,09 лв.
Важно: Минимална такса за качване или монтаж 25 € / 48,90 лв. на адрес. Териториално покритие на услугите виж тук: Качване,Монтаж



















